Descrizione

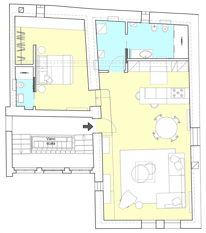
*ESCLUSIVA* Proponiamo in AFFITTO in Crema centro storico prestigioso appartamento arredato composto da soggiorno con cucina a vista, camera con cabina armadio e bagno riservato, antibagno lavanderia, bagno. La pavimentazione e i rivestimenti sono in resina. Riscaldamento - raffrescamento autonomi. Pronta disponibilità.
Puoi prenotare subito una visita senza impegno e senza costi, anche online, visitando il sito www.modibox.it.


Caratteristiche principali

Consegna
Libero
Stato Immobile
Ristrutturato
Grado
Signorile
Posizione
Centro Storico
Lati Liberi
2
Giardino
Cortile
Arredi
Arredato
Tipo Soggiorno
Sala da Pranzo
Tipo Cucina
Angolo Cottura
Riscaldamento
Autonomo
Tipo Riscaldam.
Ventilconvettore
Tipo Impianto
Aria
Fonte Energetica
Metano
Acqua Calda
Autonoma
Raffrescamento
Fan Coil
Infissi
Legno Doppio Vetro
Serramenti
Nuovo
Pavim. Giorno
Resina
Pavim. Notte
Resina
Pavim. Cucina
Resina
Pavim. Bagno
Resina
Cauzione
Tre Mesi
Canoni Anticipati
Un Mese
Tipo Contratto
4+4 Anni
Accesso Disabili
No
Tipo Registr.
Cedolare Secca
Accessori: Ascensore, Doppi Vetri, Porta Blindata, Video Citofono, Zanzariere

Richiedi informazioni

Invia
Cookie preference