Descrizione

Proponiamo in vendita in zona Sabbioni, una prestigiosa porzione di bifamiliare che ridefinisce il concetto di ampi spazi e comfort abitativo.
L'mmobile, mantenuto in ottimo stato e caratterizzato da finiture signorili, è ideale per chi cerca una soluzione abitativa di alto livello.

Dettagli della Proprietà:
Superficie Abitativa: 240 mq ben distribuiti.
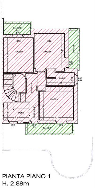
Zona Notte: Dispone di tre ampie camere da letto al piano primo, ciascuna dotata di ampio balcone e servite da due bagni, garantendo il massimo della tranquillità e privacy per la famiglia.

Accessori di Valore:
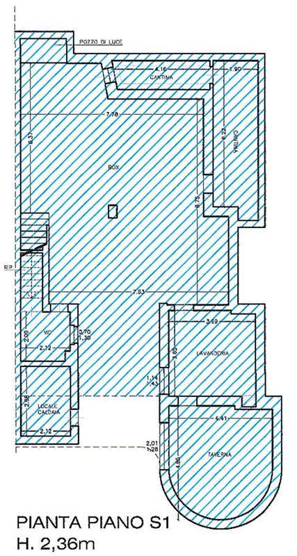
Un ulteriore spazio di 150 mq è dedicato ai servizi e al relax. Questo include
una taverna ideale per l'intrattenimento, una lavanderia e un garage eccezionalmente spazioso, capace di ospitare comodamente 3 auto.

Migliorie recenti: integrale rifacimento del tetto; sostituzione della caldaia.

Esterni: La casa dispone di una veranda fronte cucina, di un generoso porticato e di un deposito attrezzi in corpo staccato. È circondata da un giardino privato piantumato di 500 mq, dimensione perfetta per godere della vita all'aperto, senza rinunciare alla privacy e alla cura del verde. La generosità delle metrature e la qualità costruttiva rendono questa proprietà la scelta ideale per
famiglie esigenti che necessitano di spazio interno ed esterno, uniti a una posizione strategica e un contesto riservato.

Perché sceglierla: Ampiezza, ubicazione, giardino esclusivo, stato impeccabile, accessori funzionali.

Per visionare la documentazione completa e organizzare un appuntamento riservato, vi preghiamo di contattarci.


Caratteristiche principali

Consegna
Al rogito
Stato Immobile
Ottimo
Grado
Signorile
Orientamento
Nord Ovest Sud
Lati Liberi
3
Giardino
Privato
Tipo Soggiorno
Soggiorno
Tipo Cucina
Abitabile
Riscaldamento
Autonomo
Tipo Riscaldam.
Caldaia
Tipo Impianto
Radiatori
Fonte Energetica
Metano
Acqua Calda
Autonoma
Pavim. Giorno
Parquet
Pavim. Cucina
Ceramica
Pavim. Bagno
Ceramica
Appartamenti
Uno
Accessori: Antifurto, Aria Condizionata, Armadio a Muro, Camino, Cassaforte, Cancello Elettrico, Doppi Vetri, Lavanderia, Porta Blindata, Video Citofono, Zanzariere

Richiedi informazioni

Invia
Cookie preference