Descrizione

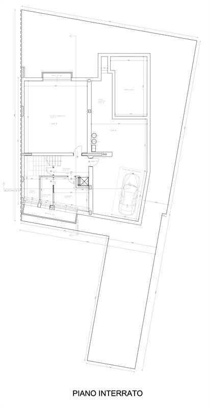
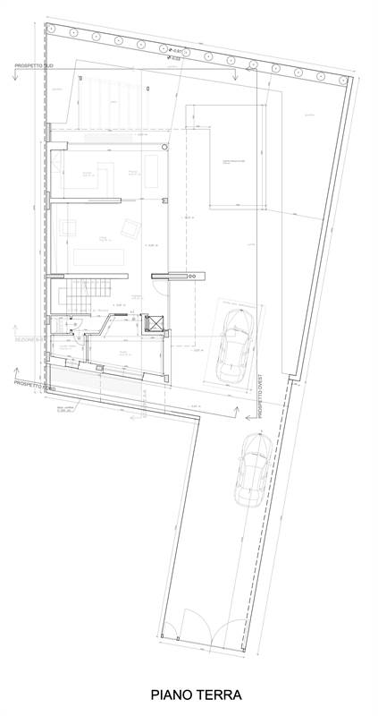
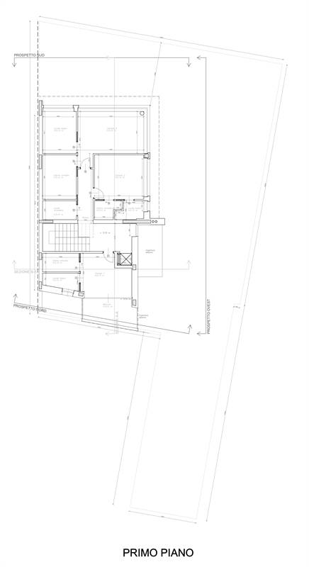
Proponiamo in vendita un rustico da riattare su un lotto di 707 m². L'immobile rappresenta un'occasione di investimento straordinaria per la costruzione di una villa singola di 240 m² disposta su due livelli, oltre a un piano interrato.

Il progetto, già approvato, prevede un'ampia area esterna con un giardino di 500 m². Questa soluzione offre la possibilità di realizzare una residenza di prestigio completamente personalizzabile in ogni dettaglio.

Per visionare il progetto esecutivo o per ricevere ulteriori informazioni, non esitate a contattarci. Il nostro team è a completa disposizione per accompagnarvi in ogni fase del vostro investimento.


Caratteristiche principali

Stato Immobile
Rustico

Mappa

via Dogali 13, Crema (CR)

Richiedi informazioni

Invia
Cookie preference