Descrizione

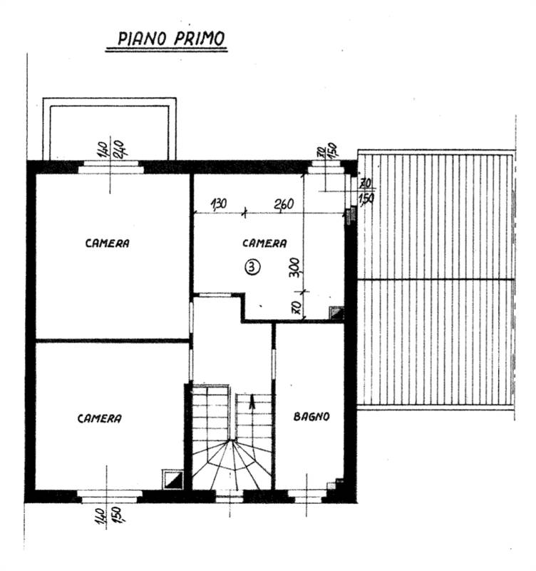
*ESCLUSIVA* Vende nel Comune di Mediglia, in zona prettamente residenziale casa a schiera disposta su tre livelli, ingresso dal portico dove troviamo la zona giorno, la cucina e il bagno; tramite la scala interna possiamo scendere alla taverna o salire alla zona notte dove troviamo le tre camere matrimoniali e il bagno. Completa l'offerta il box e il giardino sia sul fronte che sul retro.
Prenota subito la tua visita senza impegno e senza alcun costo. Ora anche on-line, visita il nostro sito www.modibox.it


Caratteristiche principali

Consegna
Libero
Stato Immobile
Da Ristrutturare
Giardino
Privato

Mappa

via Miglioli 4, Mediglia (MI)

Richiedi informazioni

Invia
Cookie preference